Mengapa Perlu Renovasi & Pembangunan
kapasitas & Fasilitas terbatas
Kegiatan ibadah dan pembinaan umat semakin meningkat, sementara sarana yang ada belum memadai dari segi ruang maupun fasilitas pendukung.
Menopang pembinaan berkelanjutan
Pembangunan bertujuan menyediakan tempat ibadah yang layak, memperkuat kelas Dhamma/meditasi, serta memperluas peran sosial-keagamaan vihara bagi masyarakat.
Layanan Berkelanjutan
Vihara telah lama menjadi pusat ibadah umat Buddha di Titi Kuning (sejak 1987). Peningkatan kualitas dan kapasitas menjadi kebutuhan agar pelayanan tetap optimal.
Maksud Dan Tujuan
Sarana Ibadah yang Layak & Representatif
Pendidikan & Pembinaan Dhamma
Mengakomodasi Pertumbuhan Umat

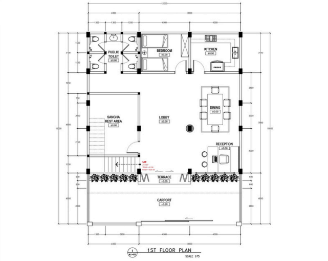
Denah Plan Lantai Satu Vihara
Pada Lantai satu akan di bangun lobby utama vihara yang dilengkapi dengan berbagai fasilitas dasar seperti kamar mandi, dapur hingga ruang makan selain itu juga akan dibangun area persinggahan sangha hingga kuti bagi sangha

Denah Plan Bhaktisala Utama Vihara
Bhaktisala berada di lantai dua sebagai pusat puja bakti dan meditasi. Ruang dirancang lapang dengan tata alur yang rapi: jamaah masuk dari tangga sisi kiri, melewati area transisi singkat, lalu menuju ruang doa yang berorientasi ke altar utama di bagian depan.
Mari Ikut Berpartisipasi
Besar maupun kecil, persembahan Anda sangat bermanfaat untuk mendukung kegiatan vihara dan melestarikan Buddha Dhamma.